Property Details
ME3 8FT
Sold £240,000Description
Chancel Drive
House Sold -
Now Sold December 2022
2 Bed Coach house in popular area of Wainscot Rochester
Finished to a high standard
Living room
Modern Fitted Kitchen
2 bedrooms one en-suite
Separate bathroom
Covered Parking
Council Tax band C
EPC C79
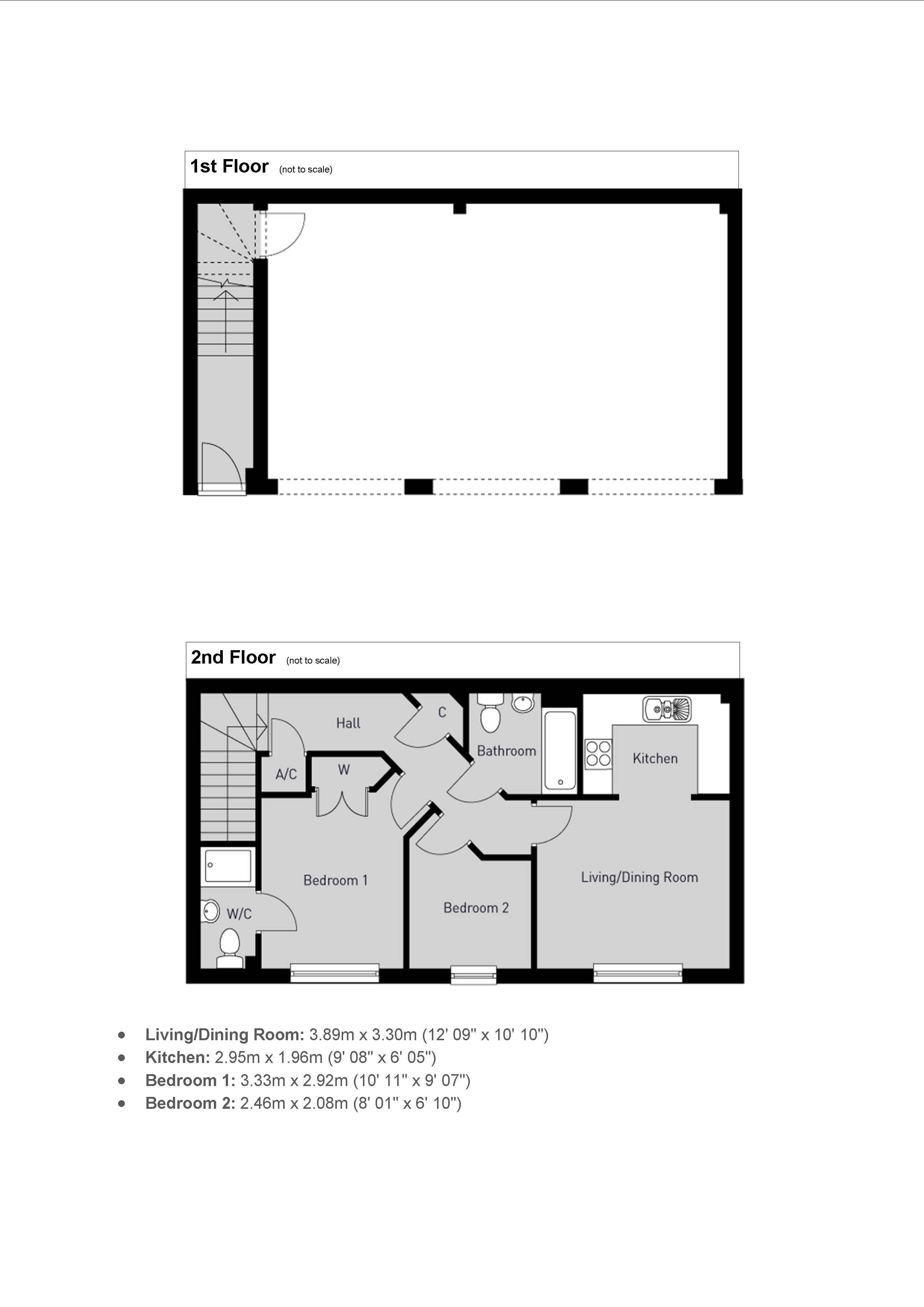
Living/Dining Room: 3.89m x 3.30m (12′ 09″ x 10′ 10″)
Kitchen: 2.95m x 1.96m (9′ 08″ x 6′ 05″)
Bedroom 1: 3.33m x 2.92m (10′ 11″ x 9′ 07″)
Bedroom 2: 2.46m x 2.08m (8′ 01″ x 6′ 10″)
Property description
Accommodation
Through Entrance Door into Entrance Hall
Coir door mat, fitted carpet, radiator, stairs lead to:
Landing
Fitted carpet, two double glazed windows, radiator, fitted cupboard containing hot water cylinder and slated shelving, smoke detector, further fitted storage cupboard, loft hatch
Living Room 12’8” x 10’9”
Fitted carpet, double glazed window, two radiators, satellite point, TV aerial point, telephone point x 2. Leads into kitchen:
Kitchen 6’5” x 9’6”
Wood effect vinyl flooring, range of matching kitchen units with white gloss cupboard doors & grey granite effect worksurfaces with matching splash back. 1 ½ bowl stainless steel sink and drainer, Bosch electric fan assisted oven & grill with four ring stainless steel gas hob above with stainless steel splash back and Bosch stainless steel canopy extractor hood above. Cupboard containing gas boiler, fitted integrated Bosch washer/dryer, recess for fridge/freezer. Recessed halogen spotlights, double glazed window
Bedroom One 9’7” x 10’10”
Fitted carpet, double glazed window, radiator, TV aerial point, telephone point, double fitted wardrobe with hanging rail and shelf above. Door to:
En-Suite Shower Room
Wood effect vinyl flooring, matching white bathroom suite comprising of close couple wc and pedestal wash basin with ½ tile wall surround. Large shower cubicle with chrome thermostatic shower and fully tiled wall, white heated towel rail, electric shaver point, double glazed window.
Bedroom Two/Study 8’2”(narrows to 6’9”min) x 8’0”
Fitted carpet, radiator, double glazed window
Bathroom
Wood effect vinyl flooring, matching white bathroom suite comprising of close couple wc and pedestal wash hand basin with ½ tiled wall, bath with chrome thermostatic mixer tap with rinse shower attachment and fully tiled wall surround, white heated towel rail, double glazed window, shaving socket
Outside
Covered parking space for 1 vehicle
DISCLAIMER
To the best of our knowledge, the information contained is accurate. Whilst we take reasonable care to ensure its accuracy, we cannot guarantee this and do not supply any warranty or representation of any kind in relation to the content. We reserve the right to change the information at any time.
We cannot accept any responsibility for any loss, damages arising from these details.
Property Features
- House
- 2 bed
- 1 bath
- 1 Parking Spaces
- 2 Toilet
- Ensuite
- Carport
- Dishwasher
- Gas Heating
- Central Heating
- Double Glazing
- Off Road Parking
-
Home Estate 2 bed property to rent Wainscott Rochester
-
Home Estate 2 bed property to rent Wainscott Rochester
-
Home Estate 2 bed property to rent Wainscott Rochester
-
Home Estate 2 bed property to rent Wainscott Rochester
-
Home Estate 2 bed property to rent Wainscott Rochester
-
Home Estate 2 bed property to rent Wainscott Rochester
-
Home Estate 2 bed property to rent Wainscott Rochester
-
Home Estate 2 bed property to rent Wainscott Rochester
-
Home Estate 2 bed property to rent Wainscott Rochester
-
Home Estate 2 bed property to rent Wainscott Rochester
-
Home Estate 2 bed property to rent Wainscott Rochester
-
Home Estate 2 bed property to rent Wainscott Rochester
-
Home Estate 2 bed property to rent Wainscott Rochester
-
-
-